Are You Ready For Your Arizona Dream Home?

WE LOVE PLANNING AND DESIGNING ANY TYPE OF PROJECTS FOR ARIZONA RESIDENTS OR ANYWHERE IN THE COUNTRY.

CUSTOM HOME DESIGN

NEW ADDITION OR REMODEL

CASITA OR GUEST HOUSE

DETACHED GARAGE OR SHOP
Before you purchase any online architectural plans, call us!

A Trusted Reputation
With our background in contracting, we are able to help people achieve practical solutions to design and build projects. Our goal is to draft designs that meet code compliant plans that you need to obtain building permits quickly, minimizing downtime which also saves our clients money. We are a registered business with the state of Arizona Trade Commission and have also been screened and approved by Home Advisor's team of professionals.
25
YEARS OF
EXPERIENCE
384
HAPPY
CLIENTS
Happiness starts with a plan!
Your dream starts now!
From concept to completion, we don’t cut corners when it comes to delivering superior results. We will work side by side with you regardless of the size, project type or deadline of your residential building project.


CAD Drafting
The best CAD drafting services in all of Arizona. Our drafting and design firm has been offering CAD drafting services in Pinal and Maricopa county for many years and is screened and approved by Home Advisor.

AutoCad Services
A1 Drafting offers the best AutoCAD drafting services in Maricopa County, Arizona.

Consulting
We highly enjoy this part of the process to ensure you get exactly what you're looking for. We handle consulting, drafting, designing, permits and building codes.

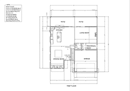
Residential Drafting
Building a custom home? We have designed homes in Gilbert, Mesa, Tempe, Chandler, Queen Creek, San Tan Valley, Phoenix, Scottsdale, Glendale, Sun City, Maricopa and Peoria.




